Wohnraum oder Tourismus: Warum wir dieser Entscheidung nicht zugestimmt haben und worum es wirklich geht!
In der Gemeindevertretung vom 19.03.2023 wurde unter Punkt 10.8 eine weitreichende Entscheidung zur zukünftigen Nutzung des Gebietes „Alte Gärtnerei/MZO“ getroffen. Konkret betrifft dies das östlich gelegene Villengebiet in Richtung Wald und Promenade.
Grundlage war die Beschlussvorlage BV/26/385 zur Aufhebung eines früheren Beschlusses aus dem Jahr 2021 zur 4. Änderung des Bebauungsplanes Nr. 9.
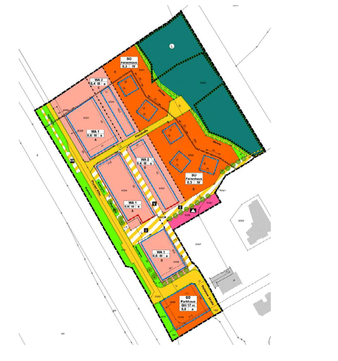
„Alte Gärtnerei/MZO“ orange eingefärbt vor dem grünen Wald

Ursprüngliche Entwicklung des Gebietes
Das Gebiet war ursprünglich als Mischgebiet vorgesehen und hierzu gab es starken Redebedarf.
Am 25.03.2021 wurde jedoch, auf Initiative der BfB sowie unserer Wählergemeinschaft „aus der MITTE“, beschlossen, dieses Gebiet in ein reines Wohngebiet umzuwandeln.
Dieser Beschluss (4. Änderung) wurde am 25.03.2021 einstimmig gefasst.
Ziel war es, zusätzlichen Wohnraum zu schaffen und die Entwicklung des Gebietes stärker an den Bedürfnissen der Einwohner auszurichten. Nach diesem Beschluss wurde über längere Zeit öffentlich nicht weiter über das Thema gesprochen.
Wiederaufnahme im Jahr 2025
Erst im September 2025 wurde das Thema erneut aufgegriffen.
In diesem Zusammenhang wurde darauf hingewiesen, dass bei einer Beibehaltung als Wohngebiet Fördermittel nicht ausgezahlt werden könnten.
Diese Diskussionen fand jedoch ausschließlich über den gesamten Zeitraum im nicht öffentlichen Teil statt.
Für die Bürgerinnen und Bürger gab es somit keine Möglichkeit, die Entwicklung transparent nachzuvollziehen. Warum?
Finanzielle Aspekte
In der aktuellen Beschlussvorlage wird deutlich, dass finanzielle Überlegungen eine zentrale Rolle gespielt haben:
- Fördermittel in einer geschätzten Höhe von etwa 300.000 €, wobei die genaue Summe nicht feststeht und sowohl höher als auch niedriger ausfallen kann
- mögliche Erhöhung des Grundstückspreises von derzeit ca. 500 €/qm auf etwa 800 €/qm, wodurch mit höheren Einnahmen gerechnet wird
Diese Punkte wurden jedoch nicht detailliert in der Beschlussvorlage dargestellt.
Für die Öffentlichkeit bleibt damit unklar, wie belastbar diese Zahlen sind und welche Auswirkungen sie konkret haben. Auch hier fehlt ganz klar die Transparenz für unsere Bürgerinnen und Bürger.
Kurzfristiger Zusatzantrag während der Sitzung
Nachdem dieser Tagesordnungspunkt in der Sitzung erreicht wurde, bat der Bürgermeister um eine Unterbrechung.
Im Anschluss stellte Bürgermeister Herr Mario Kurowski kurzfristig einen Zusatzantrag vor. Dieser sah vor, den Ausschluss von Ferienwohnungen festzulegen und das Gebiet gleichzeitig als touristisches Sondergebiet auszuweisen.
Dieser Antrag wurde den Gemeindevertretern, und auch uns von „aus der MITTE“ erst unmittelbar während der laufenden Sitzung vorgestellt. Eine vertiefte Prüfung oder Abstimmung im Vorfeld war daher nicht möglich.
Die kurzfristige Einbringung hatte zur Folge, dass zentrale Fragen nicht mehr ausreichend geklärt werden konnten, unter anderem:
- Ist diese Änderung rechtlich eindeutig zulässig?
- Welche konkreten Nutzungen sind künftig möglich?
- Sind beispielsweise Hotels, Gastronomie oder Wellnessangebote vorgesehen?
- Welche Auswirkungen/Schäden könnten sich für die Gemeinde ergeben?
Gerade vor dem Hintergrund, dass seit September 2025 über dieses Thema gesprochen wurde, stellt sich für uns die Frage, warum ein solcher Zusatzantrag erst während der Sitzung eingebracht wurde.
Zudem bleibt der Begriff „touristisches Gebiet ohne Ferienwohnungen“ unklar und lässt offen, welche Nutzungen tatsächlich zulässig sein werden.
Abstimmung
Vor der Abstimmung haben wir von der Fraktion aus der MITTE gefordert, den Punkt 10.8 als wortwörtliches Protokoll aufzunehmen sowie eine namentliche Abstimmung durchzuführen, um für Transparenz zu sorgen.
Dieses Protokoll wird nach der nächsten Gemeindevertretersitzung öffentlich einsehbar sein.
Die Abstimmung über den Zusatzantrag (Ausschluss der Ferienwohnungen):
- Herr Bötcher (CDU): Ja
- Herr Colmsee (BfB): Ja
- Herr Dormann (CDU): Ja
- Frau Drahota (GfB): Nein
- Frau Dr. Funk (CDU): Ja
- Frau Mehlberg (BfB): Ja
- Herr Müller (SPD): Ja
- Herr Pede (BfkW): Ja
- Frau Pfeifer (GfB): Nein
- Herr Reinbold (SPD): Ja
- Frau Dr. Rohde-Baran (Bündnis 90/ Die Grünen): ja
- Herr Schulz (SPD): Ja
- Herr Steinbrecher (BfB): Ja
2. Abstimmung über das Sondergebiet Tourismus:
- Herr Bötcher (CDU): Ja
- Herr Colmsee (BfB): Ja
- Herr Dormann (CDU): Ja
- Frau Drahota (GfB): Nein
- Frau Dr. Funk (CDU): Ja
- Frau Mehlberg (BfB): Ja
- Herr Müller (SPD): Enthaltung
- Herr Pede (BfkW): Ja
- Frau Pfeifer (GfB): Nein
- Herr Reinbold (SPD): Ja
- Frau Dr. Rohde-Baran (Bündnis 90/ Die Grünen): Enthaltung
- Herr Schulz (SPD): Ja
- Herr Steinbrecher (BfB): Ja
Unser Fazit
Wir von „aus der MITTE“ haben diesem Beschluss nicht zugestimmt.
Unsere Gründe:
- Der Zusatzantrag wurde kurzfristig eingebracht
- Wichtige Fragen konnten nicht geklärt werden
- Zentrale Entscheidungsgrundlagen waren nicht transparent
Zudem stehen wir weiterhin zu unserem Ziel, Wohnraum zu schaffen und zusätzliche touristische Nutzungen kritisch zu prüfen, wie es auch Teil unseres Wahlversprechens ist.
Ausblick
In einem zweiten Teil werden wir auf die öffentliche Berichterstattung (Ostseezeitung) und weitere Entwicklungen zu diesem Thema eingehen.
